$359,000
        
      
      Investment Summary
- Monthly Cash Flow
 - -$503
 - Cap Rate
 - 4.5%
 - Cash-on-Cash Return
 - -7.3%
 - Debt Coverage Ratio
 - 0.73
 - Internal Rate of Return (5 years)
 - -3.1%
 
Cash Flow
Net Operating Income (NOI) minus mortgage payments.
Calculation:
NOI - Mortgage Payments
Cap Rate (Market Value)
Capitalization Rate is a rate of return that compares the yearly Net Operating Income (NOI) to the market value.
Calculation:
NOI / Market Value
Cash-on-Cash Return (CoC)
Annual Cash Flow / Cash Invested
Calculation:
Annual cash flow divided by initial cash invested.
Debt Coverage Ratio (DCR)
Net Operating Income (NOI) divided by total debt payments.
Calculation:
NOI / Total Debt Payments
Internal Rate of Return (IRR)
A metric for assessing profitability over time. IRR is the discount rate at which the net present value (NPV) of all future cash flows (positive and negative) from an investment equals zero — including both periodic cash flow (such as rent) and a projected sale at the end of the holding period. It represents the expected annualized return, accounting for income, expenses, and the recovery of capital through a future sale.
Property Description
Under contract-accepting backup offers. Discover this stunning former model townhome in the heart of Winter Springs. This beautifully updated 3 bedroom, 2.5 bath home is designed for both style and comfort. The main level boasts elegant wood-look tile flooring, while the bathrooms feature exquisite tile work and rich upgraded cabinetry. Fresh paint throughout the entire home enhances its bright and modern appeal. The kitchen is a true showstopper, offering an abundance of dark cherry cabinetry, stunning granite countertops, a tasteful tile backsplash, and upgraded lighting that enhances the space. Adjacent to the kitchen, the spacious dining area is highlighted by a decorative stone accent wall. Upstairs, custom built-in cabinetry with dramatic lighting and a convenient desk area lead to three generously sized bedrooms. The primary suite is a serene retreat with rich wood flooring, a beautifully upgraded bathroom, a spacious walk-in closet, and private access to a large balcony—perfect for relaxing evenings. Additional features include a two-car garage with ample storage, upgraded lighting, stylish window treatments, and high-end finishes throughout. This exceptional home offers a perfect blend of elegance and functionality, all in a prime location! Walking distance to shopping, dining, and recreation. Just a short walk from the Town Center and Central Winds Park—both hosting numerous community events throughout the year. Enjoy outdoor activities with the Cross Seminole Trail just down the street, catch a local sporting event at the park or Winter Springs High, and cool off in the private community pool just steps from your front door. Don’t miss your chance to own this one-of-a-kind townhome!*** Seller is offering $5,000 towards closing costs and or Rate Buy Down ****.
Build Your Team
Quickly find investor-friendly professionals who can help you succeed in real estate investing at any stage of the investing journey.
    
    
    Agents
Match with investor-friendly agents who can help you find, analyze, and close your next deal
    
    
    Lenders
Get the best funding…find investor-friendly lenders who specialize in your deal strategy
    
    
    Property Managers
Transition to passive investing. Find a trusted property management partnership that lasts.
    
    
    Tax Pros & Accountants
Taxes and financial reporting made easy—find experts to create tax savings strategies, file taxes, and more
Location
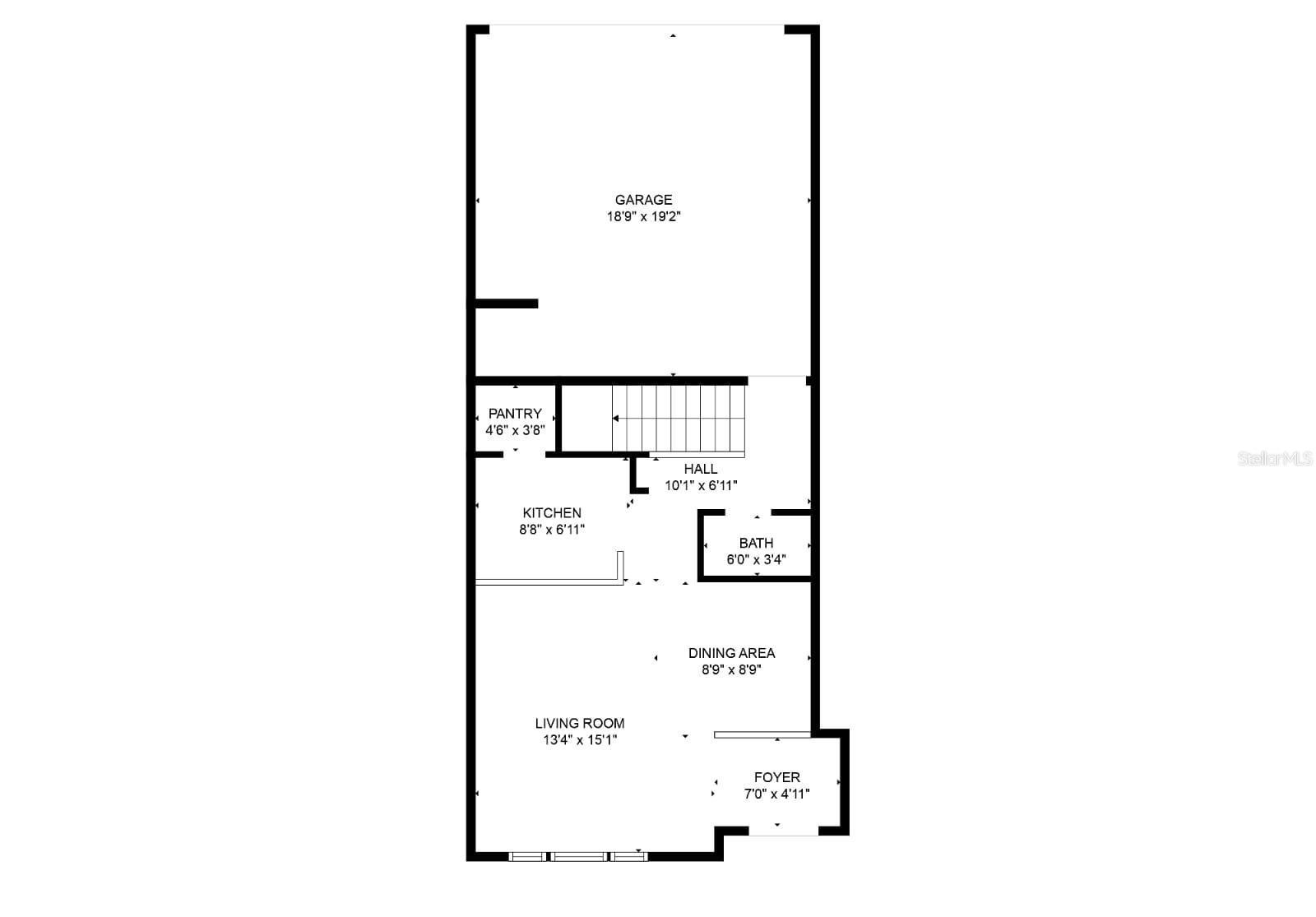
Property Details
Parking
- Description: Garage Door Opener, Garage Faces Rear, Ground Level
 - Details: Garage Door Opener, Garage Faces Rear, Attached
 - Garage Spaces: 2
 - Spaces Total: 0
 
Bedroom Information
- # of Bedrooms: 3
 
Bathroom Information
- # of Baths (Full): 2
 - # of Baths (Partial): 1
 - # of Baths (Total): 3.0
 
Interior Features
- # of Rooms: 6
 - # of Stories: 2
 
Exterior Features
- Exterior Walls Materials: Stucco
 - Foundation: Slab
 - Roof Type: Gable
 - Roof Material: Shingle
 
HOA
- Has HOA: Yes
 - Association: Leland Management / Tiffany Castille
 - HOA Fee: $698/quarterly
 
Land Information
- Land Use: Residential
 - Land Use Subtype: Single Family Residential
 
Lot Information
- Parcel ID: 3620305TH00001260
 - Lot Size: 1132 sqft
 
Property Information
- Property Type: Townhouse
 - Year Built: 2015
 
Tax Information
- Annual Tax: $4,359
 
Utilities
- Water & Sewer: None
 - Heating: Central
 - Cooling: Central Air
 
Location
- County: Seminole
 
Listing Details
        
    Investment Summary
- Monthly Cash Flow
 - -$503
 - Cap Rate
 - 4.5%
 - Cash-on-Cash Return
 - -7.3%
 - Debt Coverage Ratio
 - 0.73
 - Internal Rate of Return (5 years)
 - -3.1%
 
Cash Flow
Net Operating Income (NOI) minus mortgage payments.
Calculation:
NOI - Mortgage Payments
Cap Rate (Market Value)
Capitalization Rate is a rate of return that compares the yearly Net Operating Income (NOI) to the market value.
Calculation:
NOI / Market Value
Cash-on-Cash Return (CoC)
Annual Cash Flow / Cash Invested
Calculation:
Annual cash flow divided by initial cash invested.
Debt Coverage Ratio (DCR)
Net Operating Income (NOI) divided by total debt payments.
Calculation:
NOI / Total Debt Payments
Internal Rate of Return (IRR)
A metric for assessing profitability over time. IRR is the discount rate at which the net present value (NPV) of all future cash flows (positive and negative) from an investment equals zero — including both periodic cash flow (such as rent) and a projected sale at the end of the holding period. It represents the expected annualized return, accounting for income, expenses, and the recovery of capital through a future sale.
Purchase Details
          Purchase PriceThe price paid for the property. Purchase price: 
 |         $359,000 | 
|---|---|
          Amount FinancedThe amount of the purchase financed through a loan. Amount financed: 
 |         -$287,200 | 
          Down paymentThe initial payment made towards the purchase. Down payment: 
 |         $71,800 | 
          Closing CostsFees and expenses associated with purchasing a property, typically ranging from 2% to 5% of the home’s purchase price, paid at the end of a home purchase to cover services like lending, title transfer, and taxes. Closing costs: 
 |         $10,770 | 
          Rehab CostsCosts incurred to repair or improve the property, including: roof, flooring, exterior siding, kitchen, exterior paint, bathrooms, etc. Rehab costs: 
 |         $0 | 
          Initial Cash InvestedThe total initial cash invested in the property. Calculation:Down payment + Buying costs + Rehab costs Initial cash invested: 
 |         $82,570 | 
          Square Feet (SQFT)The total square footage of the property. Square feet: 
 |         1,435 | 
          Cost Per Square FootCost per square foot of the property. Calculation:Purchase Price / Square Feet Cost per square foot: 
 |         $250 | 
          Monthly Rent Per Square FootMonthly rent divided by the number of square feet. This ratio helps investors compare rental income efficiency across properties, markets, and unit sizes Calculation:Monthly Rent / Square Feet Monthly rent per square foot: 
 |         $1.95 | 
Financing Details
              Loan AmountThe total sum of money borrowed from a lender to finance a property purchase. Calculation:Purchase Price - Down Payment 
                Loan amount:
               
 |             $287,200 | 
|---|---|
              Loan to Value Ratio (LTV)Loan amount divided by the market value of the property. Calculation:Loan Amount / Market Value 
                Loan to value ratio:
               
 |             80.0% | 
              Loan TypeThe type of loan (e.g., fixed, adjustable). 
                Loan type:
               
 |             Amortizing | 
              TermThe loan repayment period in years. 
                Term:
               
 |             30 years | 
              Interest RateThe percentage a lender charges on the borrowed amount of a loan, determining the cost of borrowing money. 
                Interest rate:
               
 |             6.625% | 
              Principal & Interest (PI)The principal is the portion of the loan payment that reduces the loan balance. The interest is the lender's charge for borrowing money. Calculation:(P * r * (1 + r) ** n) / ((1 + r) ** n - 1) Where:
            P = Loan amount (principal) 
                Principal & interest:
               
 |             $1,839 | 
              Property TaxesAnnual taxes levied by local governments on real estate properties. These taxes fund public services like schools, roads, and emergency services. 
                Property tax:
               
 |             $363 | 
              InsuranceThe costs for insurance coverage to protect against financial losses due to risks like fire, natural disasters, theft, liability, or tenant-related damages. Calculation:Assumes 7% of gross rental income, unless insurance rates are specified. 
                Insurance:
               
 |             $196 | 
              Private Mortgage Insurance (PMI)A fee that borrowers pay when they take out a conventional loan with a loan-to-value (LTV) ratio above 80%. 
                Private mortgage insurance (PMI):
               
 |             $0 | 
            Monthly PaymentThe fixed amount a borrower pays each month to repay a loan. It typically includes principal and interest (P&I) and may also cover property taxes, insurance, HOA fees, and PMI if escrowed. Monthly payment: 
 |           $2,398 | 
Operating Income
| % Rent | Monthly | Yearly | |
|---|---|---|---|
          Gross RentThe total rental income received from tenants before deducting any expenses. Includes base rent, late fees, pet fees, parking fees, and other recurring charges. 
            Gross rent:
           
 |         $2,800 | $33,600 | |
          Vacancy LossExpected loss of rent due to vacancies. 
            Vacancy loss:
            (6%)
           
 |         6% | -$168 | -$2,016 | 
          Operating IncomeGross rental income minus vacancy loss. Calculation:Gross rent - Vacancy loss 
          Operating income:
  |         $2,632 | $31,584 | 
Operating Expenses
| % Rent | Monthly | Yearly | |
|---|---|---|---|
Property TaxesAnnual taxes levied by local governments on real estate properties. These taxes fund public services like schools, roads, and emergency services.  | 13% | -$363 | -$4,360 | 
InsuranceThe costs for insurance coverage to protect against financial losses due to risks like fire, natural disasters, theft, liability, or tenant-related damages. Calculation:Assumes 7% of gross rental income, unless insurance rates are specified.  | 7% | -$196 | -$2,352 | 
Property ManagementThe costs associated with hiring a property manager to handle the day-to-day operations of a rental property. Includes management fees, leasing fes, eviction fees, etc. Calculation:Assumes 8% of gross rental income.  | 8% | -$224 | -$2,688 | 
Repairs & MaintenanceOngoing costs for routine upkeep and minor fixes needed to keep a property in good working condition. Calculation:Assumes 5% of gross rental income. Varies by property age and condition.  | 5% | -$140 | -$1,680 | 
Capital ExpensesLarge, infrequent costs for major improvements or replacements, like a new roof, HVAC system, or appliances. Calculation:Assumes 5% of gross rental income. Varies by property age.  | 5% | -$140 | -$1,680 | 
HOA FeesRegular dues paid to a Homeowners Association for community maintenance, amenities, and management. Similar fees include: Condo Association Fees, Co-op Maintenance Fees, etc.  | 8% | -$233 | -$2,796 | 
Operating ExpensesRecurring costs required to maintain and manage a rental property, including property taxes, insurance, maintenance, repairs, utilities (if paid by the owner), property management fees, and other day-to-day expenses. Calculation:Insurance + Property Taxes + Property Management + Repairs & Maintenance + Capital Expenditures + HOA Fees  | 46% | -$1,296 | -$15,556 | 
Cash Flow
| Monthly | Yearly | |
|---|---|---|
          Net Operating Income (NOI)The income generated from a property after deducting all operating expenses but before deducting mortgage payments, taxes, and capital expenditures. Calculation:Gross Operating Income - Operating Expenses 
            Net operating income:
           
 |         $1,336 | $16,032 | 
          Mortgage PaymentThe fixed amount a borrower pays each month to repay a loan. It typically includes principal and interest (P&I) and may also cover property taxes, insurance, HOA fees, and PMI if escrowed.  |         -$1,839 | -$22,068 | 
         Cash FlowNet Operating Income (NOI) minus mortgage payments. Calculation:NOI - Mortgage Payments  |        -$503 | -$6,036 |