$325,000
        
      
      Investment Summary
We noticed that HOA fees are missing—this is a standard expense and should be considered in your estimate.
- Monthly Cash Flow
 - -$338
 - Cap Rate
 - 4.9%
 - Cash-on-Cash Return
 - -5.4%
 - Debt Coverage Ratio
 - 0.80
 - Internal Rate of Return (5 years)
 - -1.3%
 
Cash Flow
Net Operating Income (NOI) minus mortgage payments.
Calculation:
NOI - Mortgage Payments
Cap Rate (Market Value)
Capitalization Rate is a rate of return that compares the yearly Net Operating Income (NOI) to the market value.
Calculation:
NOI / Market Value
Cash-on-Cash Return (CoC)
Annual Cash Flow / Cash Invested
Calculation:
Annual cash flow divided by initial cash invested.
Debt Coverage Ratio (DCR)
Net Operating Income (NOI) divided by total debt payments.
Calculation:
NOI / Total Debt Payments
Internal Rate of Return (IRR)
A metric for assessing profitability over time. IRR is the discount rate at which the net present value (NPV) of all future cash flows (positive and negative) from an investment equals zero — including both periodic cash flow (such as rent) and a projected sale at the end of the holding period. It represents the expected annualized return, accounting for income, expenses, and the recovery of capital through a future sale.
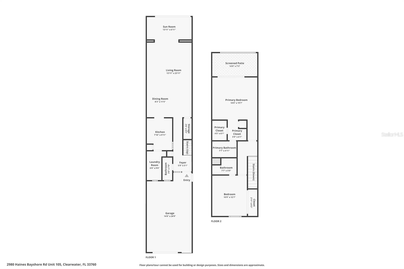
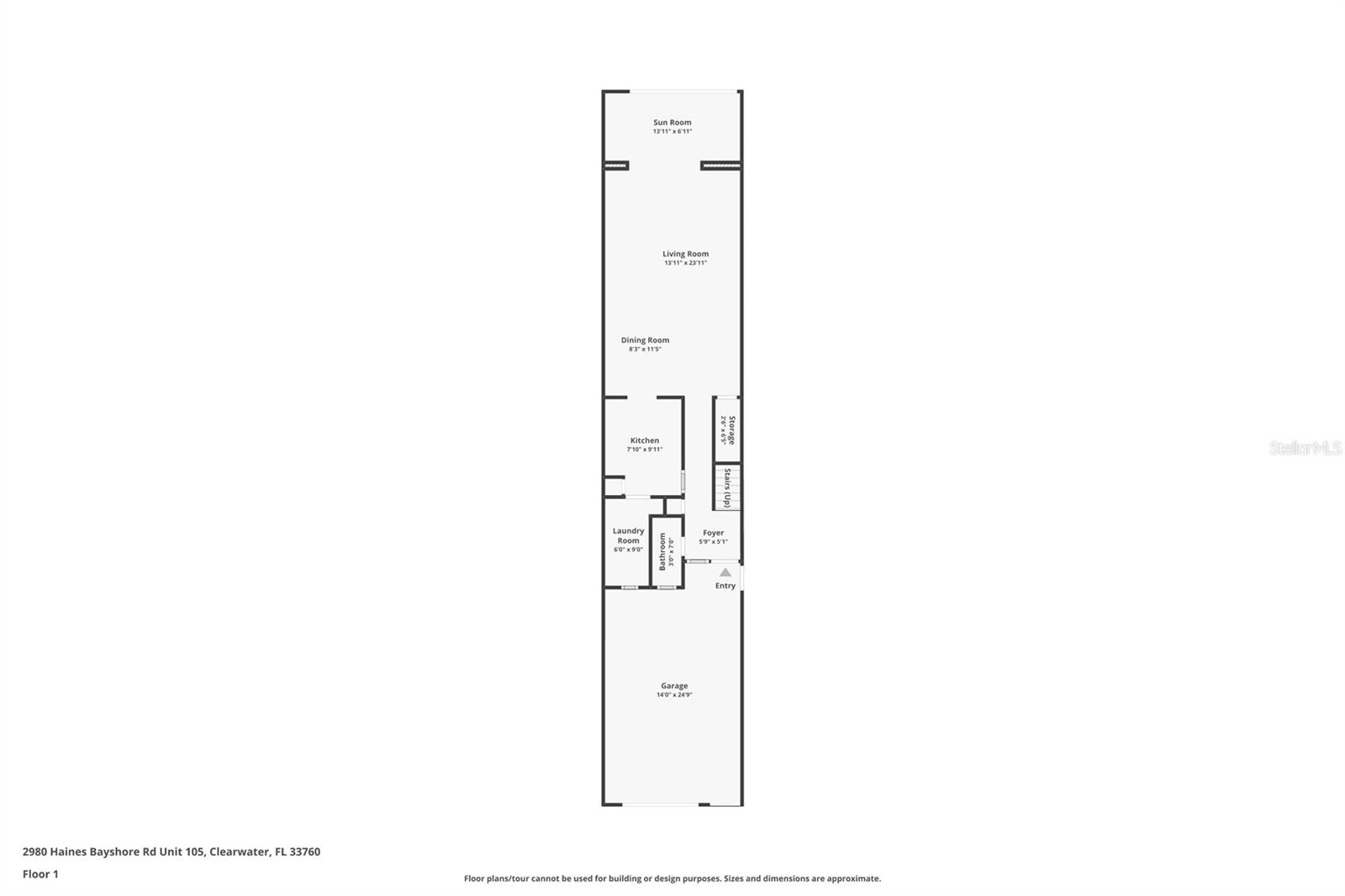
Property Description
Breathtaking Waterfront Townhome with Direct Tampa Bay Views – Caribay, Clearwater Welcome to your Florida dream home! Nestled in the highly sought-after Caribay community of Clearwater, this stunning 2-bedroom, 2.5-bathroom townhouse-style condo offers spectacular, unobstructed panoramic views of Old Tampa Bay. When it comes to location and lifestyle, it truly doesn’t get any better. This spacious residence features an open-concept floor plan on the main level, including a generous living and dining area perfect for entertaining, and a beautiful galley-style kitchen with modern appliances and convenience. Natural light pours in through expansive wall to wall sliders, making every day feel like a getaway. Upstairs, you’ll find two oversized bedrooms, each with its own private en-suite bathroom. Wake up to sunrise over the water from the master suite, which boasts a stunning wall-to-wall, floor-to-ceiling view of the bay—it’s a daily reminder of why you chose to live in paradise. The unit also features an oversized carport with a garage-style door, offering ample storage space for beach gear, bikes, kayaks, or your favorite toys. There’s even room for a second vehicle in the driveway. Caribay offers a resort-style lifestyle with amenities that include: • A spacious clubhouse with a pool table, living room style room with large-screen TV (perfect for watching the Bucs, Bolts, or Rays), kitchenette, multi-purpose room, and full bathrooms with showers. • A private fishing pier—ideal for sunbathing, birdwatching, or casting a line to catch dinner (snook, redfish and speckled trout have been known to cruise the shoreline). • A beautiful heated pool with year-round enjoyment. • A tennis court also lined for pickleball. • Kayak and paddleboard storage with a convenient launch area. And the location? You’re just minutes from Tampa International Airport and St. Pete-Clearwater International, world-class beaches like Clearwater Beach and Treasure Island, and close to the vibrant dining, art, and entertainment scenes of downtown St. Pete and Tampa. Enjoy easy access to spring training games, festivals, seasonal events, and more. Best of all, this property was unaffected by recent hurricanes—peace of mind included. Whether you’re seeking a full-time residence, vacation getaway, or investment opportunity, this bayfront beauty delivers the ultimate Florida lifestyle. Don’t miss your chance to live waterfront in Caribay! (Some Photos have been virtually staged)
Build Your Team
Quickly find investor-friendly professionals who can help you succeed in real estate investing at any stage of the investing journey.
    
    
    Agents
Match with investor-friendly agents who can help you find, analyze, and close your next deal
    
    
    Lenders
Get the best funding…find investor-friendly lenders who specialize in your deal strategy
    
    
    Property Managers
Transition to passive investing. Find a trusted property management partnership that lasts.
    
    
    Tax Pros & Accountants
Taxes and financial reporting made easy—find experts to create tax savings strategies, file taxes, and more
Location
Property Details
Parking
- Description: Carport
 - Garage Spaces: 0
 - Spaces Total: 0
 
Bedroom Information
- # of Bedrooms: 2
 
Bathroom Information
- # of Baths (Full): 2
 - # of Baths (Total): 3.0
 
Interior Features
- # of Rooms: 7
 - # of Stories: 2
 
Exterior Features
- Exterior Walls Materials: Masonry
 - Foundation: Slab
 - Roof Material: Membrane
 
HOA
- Association: Resource Property Management
 
Land Information
- Land Use: Residential
 - Land Use Subtype: Condominium Unit
 
Lot Information
- Parcel ID: 292916134550021050
 - Lot Size: 272262 sqft
 
Property Information
- Property Type: Condominium
 - Style: Florida
 - Year Built: 1975
 
Tax Information
- Annual Tax: $641
 
Utilities
- Water & Sewer: Public
 - Heating: Electric
 - Cooling: Central Air
 
Location
- County: Pinellas
 
Listing Details
        
    Investment Summary
We noticed that HOA fees are missing—this is a standard expense and should be considered in your estimate.
- Monthly Cash Flow
 - -$338
 - Cap Rate
 - 4.9%
 - Cash-on-Cash Return
 - -5.4%
 - Debt Coverage Ratio
 - 0.80
 - Internal Rate of Return (5 years)
 - -1.3%
 
Cash Flow
Net Operating Income (NOI) minus mortgage payments.
Calculation:
NOI - Mortgage Payments
Cap Rate (Market Value)
Capitalization Rate is a rate of return that compares the yearly Net Operating Income (NOI) to the market value.
Calculation:
NOI / Market Value
Cash-on-Cash Return (CoC)
Annual Cash Flow / Cash Invested
Calculation:
Annual cash flow divided by initial cash invested.
Debt Coverage Ratio (DCR)
Net Operating Income (NOI) divided by total debt payments.
Calculation:
NOI / Total Debt Payments
Internal Rate of Return (IRR)
A metric for assessing profitability over time. IRR is the discount rate at which the net present value (NPV) of all future cash flows (positive and negative) from an investment equals zero — including both periodic cash flow (such as rent) and a projected sale at the end of the holding period. It represents the expected annualized return, accounting for income, expenses, and the recovery of capital through a future sale.
Purchase Details
          Purchase PriceThe price paid for the property. Purchase price: 
 |         $325,000 | 
|---|---|
          Amount FinancedThe amount of the purchase financed through a loan. Amount financed: 
 |         -$260,000 | 
          Down paymentThe initial payment made towards the purchase. Down payment: 
 |         $65,000 | 
          Closing CostsFees and expenses associated with purchasing a property, typically ranging from 2% to 5% of the home’s purchase price, paid at the end of a home purchase to cover services like lending, title transfer, and taxes. Closing costs: 
 |         $9,750 | 
          Rehab CostsCosts incurred to repair or improve the property, including: roof, flooring, exterior siding, kitchen, exterior paint, bathrooms, etc. Rehab costs: 
 |         $0 | 
          Initial Cash InvestedThe total initial cash invested in the property. Calculation:Down payment + Buying costs + Rehab costs Initial cash invested: 
 |         $74,750 | 
          Square Feet (SQFT)The total square footage of the property. Square feet: 
 |         1,210 | 
          Cost Per Square FootCost per square foot of the property. Calculation:Purchase Price / Square Feet Cost per square foot: 
 |         $269 | 
          Monthly Rent Per Square FootMonthly rent divided by the number of square feet. This ratio helps investors compare rental income efficiency across properties, markets, and unit sizes Calculation:Monthly Rent / Square Feet Monthly rent per square foot: 
 |         $1.65 | 
Financing Details
              Loan AmountThe total sum of money borrowed from a lender to finance a property purchase. Calculation:Purchase Price - Down Payment 
                Loan amount:
               
 |             $260,000 | 
|---|---|
              Loan to Value Ratio (LTV)Loan amount divided by the market value of the property. Calculation:Loan Amount / Market Value 
                Loan to value ratio:
               
 |             80.0% | 
              Loan TypeThe type of loan (e.g., fixed, adjustable). 
                Loan type:
               
 |             Amortizing | 
              TermThe loan repayment period in years. 
                Term:
               
 |             30 years | 
              Interest RateThe percentage a lender charges on the borrowed amount of a loan, determining the cost of borrowing money. 
                Interest rate:
               
 |             6.625% | 
              Principal & Interest (PI)The principal is the portion of the loan payment that reduces the loan balance. The interest is the lender's charge for borrowing money. Calculation:(P * r * (1 + r) ** n) / ((1 + r) ** n - 1) Where:
            P = Loan amount (principal) 
                Principal & interest:
               
 |             $1,665 | 
              Property TaxesAnnual taxes levied by local governments on real estate properties. These taxes fund public services like schools, roads, and emergency services. 
                Property tax:
               
 |             $53 | 
              InsuranceThe costs for insurance coverage to protect against financial losses due to risks like fire, natural disasters, theft, liability, or tenant-related damages. Calculation:Assumes 7% of gross rental income, unless insurance rates are specified. 
                Insurance:
               
 |             $140 | 
              Private Mortgage Insurance (PMI)A fee that borrowers pay when they take out a conventional loan with a loan-to-value (LTV) ratio above 80%. 
                Private mortgage insurance (PMI):
               
 |             $0 | 
            Monthly PaymentThe fixed amount a borrower pays each month to repay a loan. It typically includes principal and interest (P&I) and may also cover property taxes, insurance, HOA fees, and PMI if escrowed. Monthly payment: 
 |           $1,858 | 
Operating Income
| % Rent | Monthly | Yearly | |
|---|---|---|---|
          Gross RentThe total rental income received from tenants before deducting any expenses. Includes base rent, late fees, pet fees, parking fees, and other recurring charges. 
            Gross rent:
           
 |         $2,000 | $24,000 | |
          Vacancy LossExpected loss of rent due to vacancies. 
            Vacancy loss:
            (6%)
           
 |         6% | -$120 | -$1,440 | 
          Operating IncomeGross rental income minus vacancy loss. Calculation:Gross rent - Vacancy loss 
          Operating income:
  |         $1,880 | $22,560 | 
Operating Expenses
| % Rent | Monthly | Yearly | |
|---|---|---|---|
Property TaxesAnnual taxes levied by local governments on real estate properties. These taxes fund public services like schools, roads, and emergency services.  | 3% | -$53 | -$641 | 
InsuranceThe costs for insurance coverage to protect against financial losses due to risks like fire, natural disasters, theft, liability, or tenant-related damages. Calculation:Assumes 7% of gross rental income, unless insurance rates are specified.  | 7% | -$140 | -$1,680 | 
Property ManagementThe costs associated with hiring a property manager to handle the day-to-day operations of a rental property. Includes management fees, leasing fes, eviction fees, etc. Calculation:Assumes 8% of gross rental income.  | 8% | -$160 | -$1,920 | 
Repairs & MaintenanceOngoing costs for routine upkeep and minor fixes needed to keep a property in good working condition. Calculation:Assumes 5% of gross rental income. Varies by property age and condition.  | 5% | -$100 | -$1,200 | 
Capital ExpensesLarge, infrequent costs for major improvements or replacements, like a new roof, HVAC system, or appliances. Calculation:Assumes 5% of gross rental income. Varies by property age.  | 5% | -$100 | -$1,200 | 
HOA FeesRegular dues paid to a Homeowners Association for community maintenance, amenities, and management. Similar fees include: Condo Association Fees, Co-op Maintenance Fees, etc.  | n/a | n/a | n/a | 
Operating ExpensesRecurring costs required to maintain and manage a rental property, including property taxes, insurance, maintenance, repairs, utilities (if paid by the owner), property management fees, and other day-to-day expenses. Calculation:Insurance + Property Taxes + Property Management + Repairs & Maintenance + Capital Expenditures + HOA Fees  | 28% | -$553 | -$6,641 | 
Cash Flow
| Monthly | Yearly | |
|---|---|---|
          Net Operating Income (NOI)The income generated from a property after deducting all operating expenses but before deducting mortgage payments, taxes, and capital expenditures. Calculation:Gross Operating Income - Operating Expenses 
            Net operating income:
           
 |         $1,327 | $15,924 | 
          Mortgage PaymentThe fixed amount a borrower pays each month to repay a loan. It typically includes principal and interest (P&I) and may also cover property taxes, insurance, HOA fees, and PMI if escrowed.  |         -$1,665 | -$19,980 | 
         Cash FlowNet Operating Income (NOI) minus mortgage payments. Calculation:NOI - Mortgage Payments  |        -$338 | -$4,056 |